1
/
of
14
Earthship Biotecture
Unity Earthship Construction Drawings
Unity Earthship Construction Drawings
Regular price
$2,099.00 USD
Regular price
Sale price
$2,099.00 USD
Unit price
/
per
Shipping calculated at checkout.
Couldn't load pickup availability
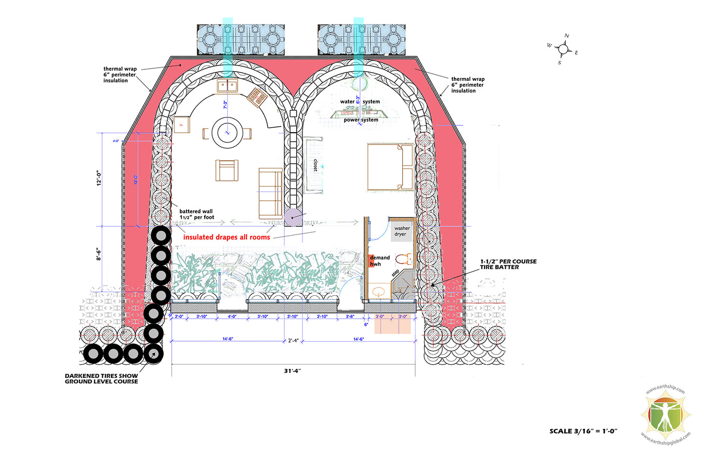
The Unity features the U-Module rooms, for cozier living spaces, and more thermal mass in each room. Also designed with thermal curtains separating the rooms instead of wood framing, this model uses less wood and is more economical than the Global Model.
***Michael Reynolds architect stamp NOT INCLUDED***
Michael Reynolds is a licensed architect in the following states and territories:
Arizona, Colorado, Nevada, New York, & Puerto Rico
If you want Michael Reynolds to be your architect and stamp your drawings, please email reception@earthship.com before making your order!
Share



















