1
/
de
14
Earthship Biotecture
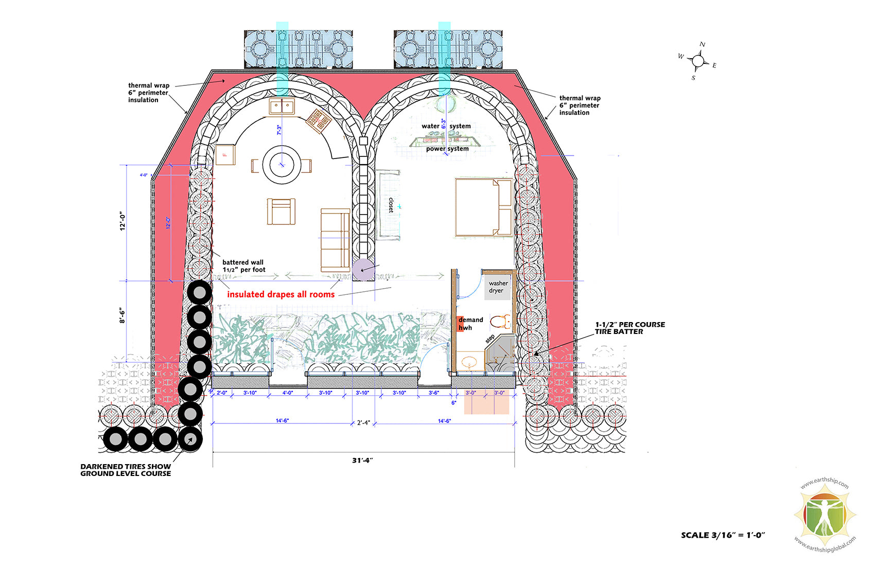
Unity Earthship Construction Drawings
Unity Earthship Construction Drawings
Prix habituel
$2,099.00 USD
Prix habituel
Prix promotionnel
$2,099.00 USD
Prix unitaire
/
par
Frais d'expédition calculés à l'étape de paiement.
Impossible de charger la disponibilité du service de retrait
The Unity features the U-Module rooms, for cozier living spaces, and more thermal mass in each room. Also designed with thermal curtains separating the rooms instead of wood framing, this model uses less wood and is more economical than the Global Model.
***Michael Reynolds architect stamp NOT INCLUDED***
Michael Reynolds is a licensed architect in the following states and territories:
Arizona, Colorado, Nevada, New York, & Puerto Rico
If you want Michael Reynolds to be your architect and stamp your drawings, please email reception@earthship.com before making your order!
Share
