1
/
su
28
Earthship Biotecture
Global Model Earthship Construction Drawings
Global Model Earthship Construction Drawings
Prezzo di listino
$3,000.00 USD
Prezzo di listino
$0.00 USD
Prezzo scontato
$3,000.00 USD
Prezzo unitario
/
per
Spese di spedizione calcolate al check-out.
Impossibile caricare la disponibilità di ritiro
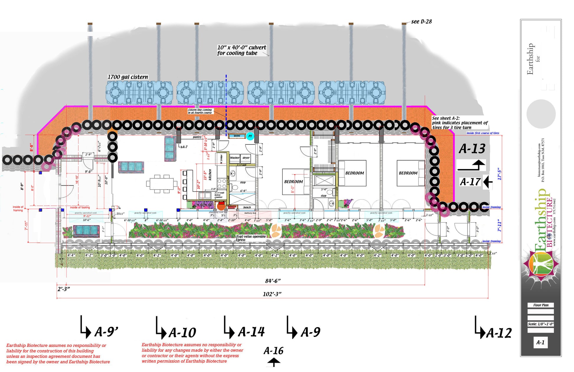
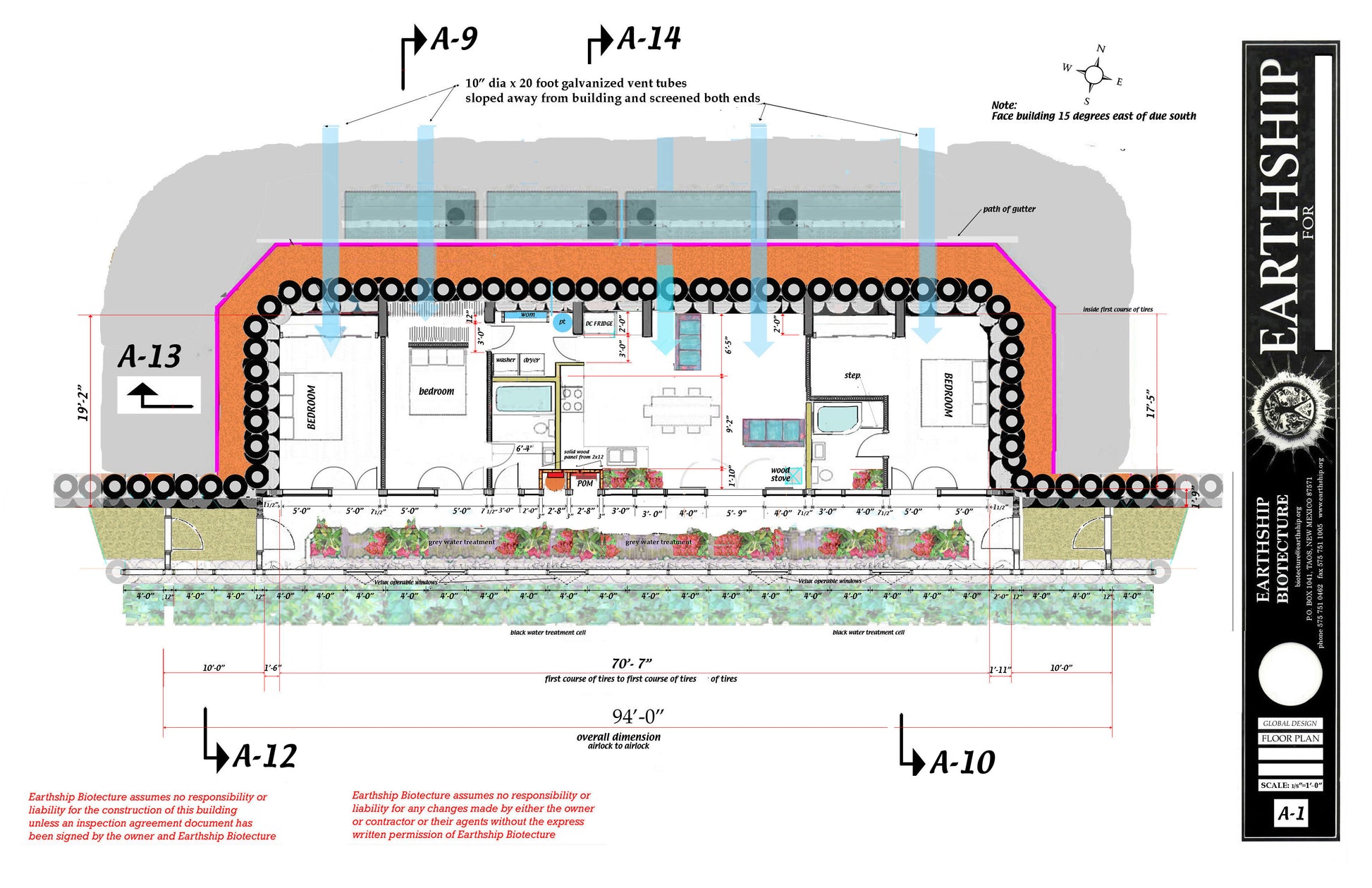
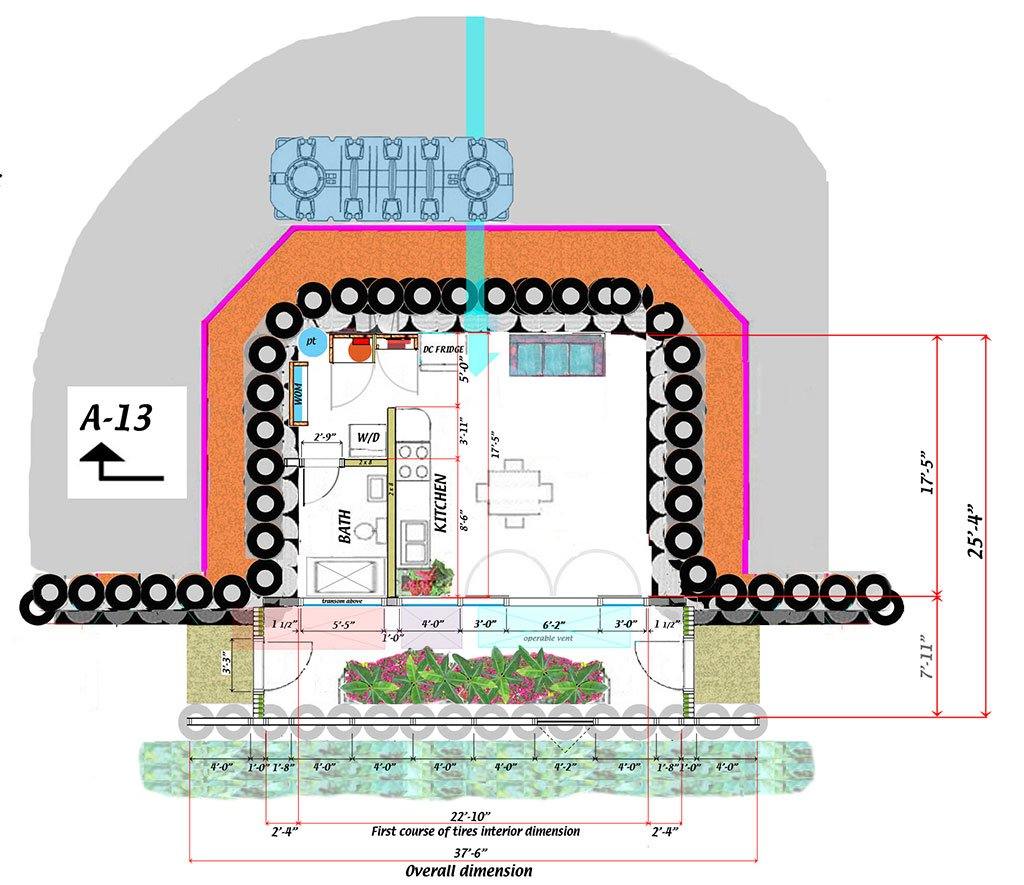
The Global Model Earthship is the flagship model Earthship.
2 sets of stock off-grid construction drawings and 1 Off-Grid Mechanical Set and 1 Detail Set. Usually you don’t have to submit the detail and mechanical drawings with the permit application. 1,868 - 2,619 sf.
***Michael Reynolds architect stamp NOT INCLUDED***
Michael Reynolds is a licensed architect in the following states and territories:
Arizona, Colorado, Nevada, New York, & Puerto Rico
If you want Michael Reynolds to be your architect and stamp your drawings, please email reception@earthship.com before making your order!
Share
